In the early 80s, Italian designer and architect Ettore Sottsass founded Memphis, a group of artists and designers who became known for their bright and bold furniture design. It was active from 1980 to 1987. The group designed postmodern furniture, lighting, fabrics, carpets, ceramics, glass and metal objects.
Although many people ridiculed their work, the Memphis group were groundbreaking and have been regaining popularity. Their use of clashing colours, haphazard arrangements and brightly coloured plastic laminate was previously unseen, however today references norm core internet styles as well as move away from monotonous contemporary modern design trends.
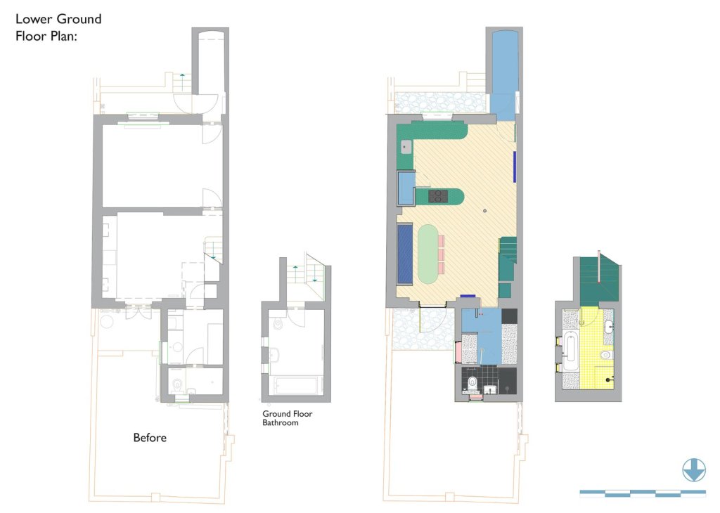
So when Tamsen Chislett and her husband Max Lines decided to renovate the main floor of their Victorian terrace home in London they wanted to contrast the dull grey landscape of London outside with a joyfilled interior landscape full of colour.
The resulting interior by S&M evokes the beach huts of South Beach Miami and of course the playful approach of the Memphis Group. “The name of the project, MO-TEL, is linked to this sense of escapism,” says Catrina Stewart, cofounder of Office S&M. “The couple wanted the space to make them feel like they were on holiday.”

The renovation isn’t just about colour and form, though. Tamsin is the founder of the online fashion rental subscription service, OnLoan, which has a focus on sustainability. She wanted to apply this principle to the design of her home.
Accordingly, the countertops in the utility room and two bathrooms are crafted using a material from Smile Plastics—a company that repurposes waste such as chopping boards and milk bottles. The kitchen worktop is a terrazzo made from marble offcuts laid in pigmented cement.
Another challenge was breaking the newly open space into different functional zones. “We did this with the bespoke furniture pieces, which are like characters—Tamsin refers to the pantry as another member of the family,” says Stewart. Each piece is designed to fulfill numerous purposes for the family, negating the need to fill the space with furniture.





























































































































